2 décembre 2025
À vendre : Maison neuve de 72 m² avec garage – Saint-André-de-Bâgé (01), aux portes de Mâcon (71)
Découvrez une belle opportunité de devenir propriétaire d’une maison neuve idéalement située à Saint-André-de-Bâgé, charmante commune de l’Ain, à seulement quelques minutes de Mâcon et de toutes ses commodités. Niché au calme d’un environnement résidentiel recherché, ce projet propose une habitation moderne et fonctionnelle érigée sur un superbe terrain de 800 m², offrant un espace extérieur rare dans le secteur.
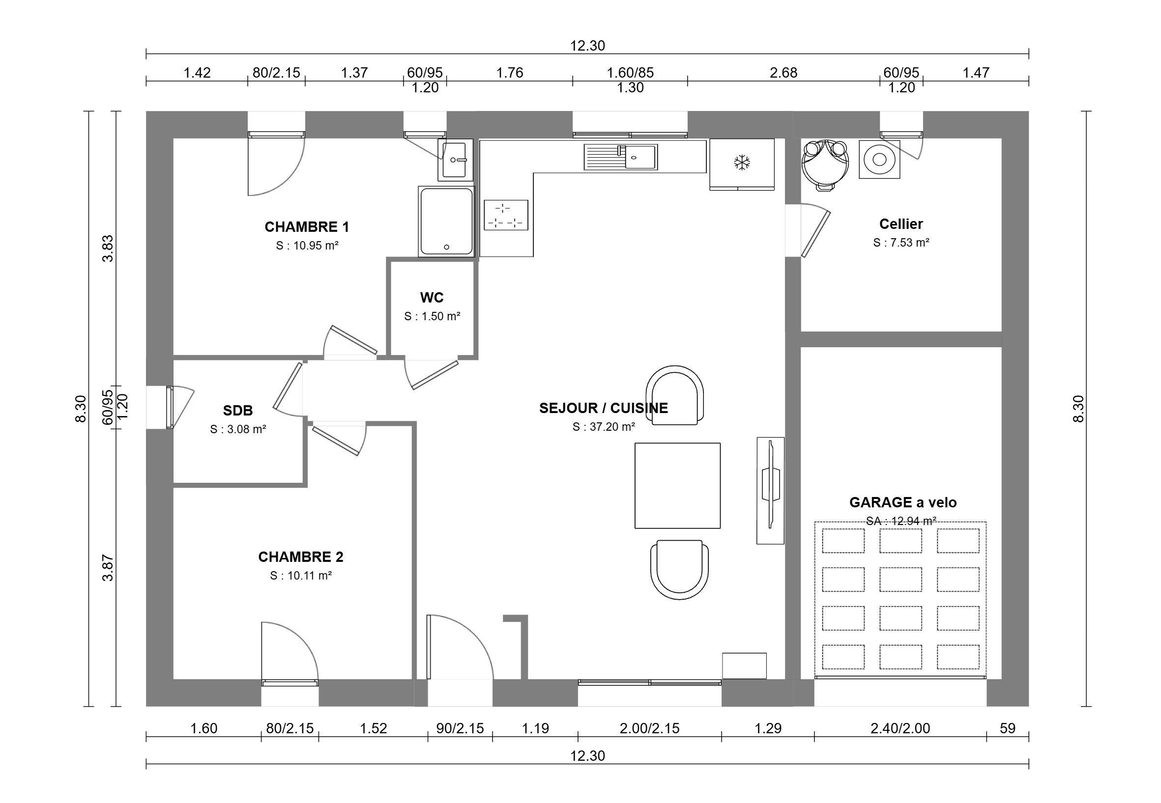
La maison, d’une surface habitable de 72 m² + garage , est conçue pour offrir confort, praticité et luminosité. Elle se compose d’une grande pièce de vie traversante intégrant salon, espace repas et cuisine ouverte, idéale pour profiter de moments conviviaux. De larges ouvertures donnent accès au jardin, permettant de savourer pleinement l’ensoleillement et le cadre naturel.
L'espace nuit comprend deux chambres bien agencées, parfaites pour un couple, une petite famille ou un investissement locatif. Une salle de bains moderne ainsi qu’un WC séparé complètent l’agencement intérieur.
Un garage attenant, inclus dans le projet, vient renforcer l’aspect pratique de cette maison en offrant stationnement sécurisé et espace de rangement supplémentaire.
Le terrain de 800 m², plat et bien exposé, permet d’envisager de multiples aménagements extérieurs : terrasse, potager, aire de jeux, ou même une future extension selon vos besoins.
Située à proximité immédiate des commerces, écoles, axes autoroutiers et de la gare de Mâcon, cette maison bénéficie d’une localisation stratégique alliant calme champêtre et vie pratique.
Une opportunité rare dans un secteur très demandé : idéal primo-accédant, résidence secondaire ou projet locatif. Permis de construire en cours d'instruction.
À découvrir rapidement !





